超声波液位计系列
您现在的位置: 上海自动化仪表集团有限公司 > 产品导航 > 液位计/物位计/料位计 > 超声波液位计
超声波液位计
产品说明: 超声波液位计原理: 超声波物位计的工作原理是由换能器(探头)发出超声波脉冲遇到被测介质表面被反射回来。部分反射回波被同一换能器接收,转换成电信号。超声波脉冲以声波
质量稳定:实行全过程质量监控,细致入微,全方位检测!
真品保证:正品保障,防伪标志
交货快捷:先进生产流水线,充足的备货,缩短了交货期!
全国咨询热线:
021-66011123
产品说明
超声波液位计原理:
超声波物位计的工作原理是由换能器(探头)发出超声波脉冲遇到被测介质表面被反射回来。部分反射回波被同一换能器接收,转换成电信号。超声波脉冲以声波速度传播,从发射到接收到超声波脉冲所需时间间隔与换能器到被测介质表面的距离成正比。此距离值S与声速C和传输时间T之间的关系可以用公式表示:S=CxT/20
由于发射的超声波脉冲有一定的宽度,使得距离换能器较近的小段区域内的反射波与发射波重迭,无法识别,不能测量其距离值。这个区域称为测量盲区。盲区的大小与超声波物位计的型号有关。
超声波液位计特点:
由于采用了先进的微处理器和独特的EchoDiscovery回波处理技术,
超声波物位计可以应用于各种复杂工况。
“虚假回波学习”功能使得仪表在多个虚假回波的工况下,可正确地确认真实回波,获得准确的测量结果。
换能器内置温度传感器,可实现测量值的温度补偿。
超声波换能器采用最佳声学匹配之专利技术,使其发射功率能更有效地辐射出去,提高信号强度.从而实现准确测量。
2、超声波液位计仪表概况
|
类型
|
DLM551
|
DLM552
|
|
应用
|
各类工业领域的液位测量,特别是水处理工业
|
各类工业领域的液位测量,特别是水处理工业
|
|
测量范围
|
液体0.25…4m
|
液体:0.4…8m
|
|
过程连接
|
G1/2/1A
|
G2A
|
|
换能器外壳材料
|
PTFE, PU/PC
|
PTFE、PU/PC
|
|
过程温度
|
-40…70℃
|
一40…70t
|
|
过程压力
|
-0. 2. .. lbar
|
-0.2. .. lbar
|
|
信号输出
|
两线制,四线制4...20mA/HART
|
两线制/四线制4.. .20mA/HART
|

|
类型
|
各类工业领域的液位测量
|
|
测量范围
|
液体:0.5…15m
|
|
过程连接
|
法兰或吊架
|
|
换能器外壳材料
|
PU/PC
|
|
过程温度
|
-40…70℃
|
|
过程压力
|
-0. 2. .. lbar
|
|
信号输出
|
两线制/四线制4.. .20mA/HART
|
3、超声波液位计安装要求
基本要求:
换能器发射超声波脉冲时,都有一定的发射开角。从换能器下缘到被测介质表面之间,由发射的超声波波束所辐射的区域内,不得有障碍物,因此安装时应尽可能避开罐内设施,如:人梯、限位开关,加热设备,支架等。在这种情况下,安装时须进行“虚假回波学习”。另外须注意超声波波束不得与加料料流相交。
安装仪表时还要注意:最高料位不得进入测量盲区;仪表距罐壁必须保持一定的距离;仪表的安装尽可能使换能器的发射方向与液面垂直。安装在防爆区域内的仪表必须遵守国家防爆危险区的安装规定。本安型的外壳采用铝壳。本安型仪表可安装在有防爆要求的场合,仪表必须接大地。
图示说明:
测量的基准面是探头的下边缘。
1、盲区
2、空仓(最大测量距离)
3、最大里程
注:使用超声波物位计时,务必保证最高料位不能进入测最盲区。
安装位置:
在安装DLM551, DLM552的时候.注意仪表和容器壁至少保持200mm的距离。

1、基准面
2、容器中央或对称轴
在安装DLM553的时候。注意仪表和容器壁至少保持500mm的距离。

1、基准面
对于锥形容器,且为平面罐项,仪表的最佳安装位置是容器项部中央,这样可以保证测呈到容器底部。

常见安装位置的正误
1、错误:换能器应与被测介质表面垂直。
2、错误:仪表被安装在拱形或圆形罐项,会造成多次反射回波.在安装时应尽可能避免。
3正确:

1、错误:不要将仪A安装于入料料流的上方,以保证测量的是介质表面而不是入料料流。
2、正确注意:室外安装时应采取遮阳、防雨措施。
超声波液位计安装方式说明
吊架式安装:吊架式用于DLM 553的安装。

法兰式安装:法兰式用于DLM553的安装。
防潮:对于安装在室外或潮湿室内及制冷或加热的罐上的仪表,为了防潮,应拧紧电缆密封套.而且要在进线口处使电缆向下弯曲。如图示:

容器接管:容器接管的第度:必须保证探头伸出接管至少10mmo

导波管安装:使用导波管安装(导波管或旁通管),可以避免容器内障碍物、泡沫和空气涡流对测量的影响。

1、通空气孔直径5.. .10mm
如果DLM55X安装在导波管内进行测量,导波管的直径只要大于换能器(探头)的外径即可(具体数据见:6结构尺寸)。在连接导波管的时候,必须防止大的裂缝和焊缝。另外,必须进行“虚假回波学习”。
注:测最粘附性介质的时候,不能使用导波管安装。
4、超声波液位计电气连接
供电电压:4...2OmA/HART
(1)(两线制)电源供电和电流信号共用一根两芯线缆。具体供电电压范围参见技术数据。
(2)对于本安型须在供电电源与仪表之间加一个安全栅。
供电电压:4...20mA/HART‘
(1)四线制)电源供电和电流信号各自分别使用一根两芯线缆。具体供电电压范围参见技术数据。
(2)标准型仪表电流输出可采用接地形式输出。防爆型仪表电流输出必须浮空输出。仪表及接地端子应保证良好接地,通常接地可连接到罐的接地点上,若是塑料罐则应接到邻近的大地上。
连接电缆的安装:
一般介绍:供电电缆可使用普通两芯电缆,电缆外径应为S...9mm,以确保电缆入口的密封。如果存在电磁干扰,建议使用屏蔽电缆。
4...20mA/HART(两线制〕供电电缆可使用普通两芯电缆。
4二20mA/HART(四线制)供电电缆应使用屏蔽电缆。
电缆的屏蔽和接线
屏献电缆两端均应接c在传感器内部,屏蔽必须直接连接内部接地端子。外壳上的外部接地端子必须连接人地。
如果有接地电流,屏蔽电缆远离仪表一侧的屏蔽端必须通过一个陶瓷电容(比如:1µF 1500V)接地,以抑制低频接地电流,同时仍可以防止高频干扰信号。
接线方式:
两线
用于HART两线制:1)供电以及信号输出
四线
用于HART四线制:1)供电
2)信号输出
防爆链接:
本产品的防爆形式为本质安全型。防爆标志:Exia II B T6。本安型超声波物位计采用铝外壳材料,内部采用胶封结构。从而确保换能器和电路部分故障时产生的火花不会泄放出来。产品适用于Exia IIB T6防爆等级以下可燃性介质的物位非接触式连续测量。
本产品使用时须用安全栅供电。FBS-1安全栅系本产品的关联设备.防爆形式为本质安全型。防爆标志:[Exia] IIB,供电电压24V Dc± 5%短路电流为100mA,工作电流4...20mA.
所有电缆均要采用屏蔽电缆,最大长度500米。分布电容<,0.1µF/Km,分布电感,<1mH/Km。超声波物位计安装时必须接大地。不得使用其它未经防爆检验的关联设备。
采用GOADware调试物位计

采用HART手持编程器调试物位计
5、超声波液位计仪表调试
调试方法:
DLM55X有三种调试方法:
(1)显示l调试模块
(2)上位机调试软件GODAware
(3) HART手持编程器
显示/调试模块:
ViewPoint是可以插接的显示调试工具,在DLM55X上ViewPoin一可以以两个角度安装(每次旋转1800)。通过ViewPoint上的4个按键对仪表进行调试。调试菜单的语言可选。
调试后,ViewPoint一般就只用于显示,透过玻璃视窗可以非常清楚地读出测量值。


上位机调试:通过HART与上位机相连
1、 RS232连接电缆
2、 DLM55X
3、用于COMWAY变换器的HART适配器
4、 250欧姆电阻
5、 COMWAY变换器
通过2C与上位机相连
1、RS232连接电缆
2、 DLM55X
3、用于COMWAY变换器的12C适配器
4 、COMWAY变换器
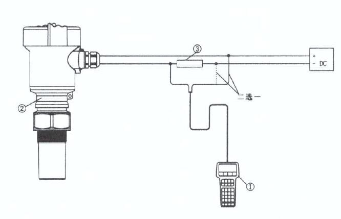
HART手持编程器:DLM55X可用HART手持编程器编程
1 、HART手持编程器
2 、DLM55X
3 、250欧姆电阻
6、超声波液位计结构尺寸(单位:mm)
外壳、材质:AL
材质:PBT-FR

DLM551
DLM552
DLM553
|
技术参数
|
|
|
|
|
DLM551和552
|
材料
|
过程连接DLM551 螺纹G12/12A
|
|
|
过程连接DLM552 螺纹G2A
|
|||
|
换能器 PTFE、PUIPC
|
|||
|
重量
|
1 .8...3.0 kg(取决于过程连接和外壳〕
|
||
|
DLM553
|
材料
|
吊架 不锈钢316L
|
|
|
换能器密封 硅胶
|
|||
|
锁紧法兰 不锈钢316L
|
|||
|
外壳 塑料PBT-FR:铝
|
|||
|
外壳和外壳盖之间的密封 硅橡胶
|
|||
|
外壳上用于ViewPoint的视窗 聚碳酸酯
|
|||
|
接待端子 不锈钢
|
|||
|
重量
|
2 .7...5.0 kg‘取决于过程连接和外壳)
|
||
|
DLM55I和552两线制
|
供电电压
|
非防爆 16...36V DC
|
|
|
本安防爆 16...30V DC
|
|||
|
DLM553两线制
|
供电电压
|
20..36V DC
|
|
|
功耗
|
max.22.5ma
|
||
|
允许纹波
|
<LOOHz Uss<1V
|
||
|
<100Hz…100KHz Uss<10mV
|
|||
|
四线制
|
供电电压
|
24V DC110%
|
|
|
功耗
|
max.4VA,2.1w
|
||
|
输出参数
|
输出信号
|
4.__2.0mA/HART
|
|
|
分辨率
|
1 .65A
|
||
|
故障信号
|
电流输出不变:20.5mA; 22mA;,3.8mA
|
||
|
两线制负载电阻
|
见下图
|
||
|
四线制负载电阻
|
最大500欧姆
|
||
|
积分时叫
|
0.20秒,可调
|
||

|
特征参数
|
||
|
盲区
|
一DLM551
|
0.25m
|
|
一DLM552
|
0.4m
|
|
|
一DLM553
|
0.5m
|
|
|
最大测t距离 液体
|
一DLM551
|
4m
|
|
一DLM552
|
8m
|
|
|
一DLM553
|
15m
|
|
|
超声波频率
|
一DLM551
|
46KHz
|
|
一DLM552
|
35KHz
|
|
|
一DLM553
|
35KHz
|
|
|
测量间隔
|
>2秒(取决于参数设置)
|
|
|
调整时间”
|
>3秒(取决于参数设盆)
|
|
|
发射角
|
一DLM551和552
|
5.5℃
|
|
一DLM553
|
3℃
|
|
|
显示分辨率
|
1mm
|
|
|
精度
|
0.2%一0.5%(满2程)
|
|
|
工作存储及运愉温度
|
一40. ..+70℃
|
|
|
过程温度(探头部分的温度)
|
-40,二十70t
|
|
|
一相对湿度
|
<95%
|
|
|
一压力
|
0.1MPa
|
|
|
耐振
|
机械展动IOM/S2 .10.一50Hz
|
|
|
电缆参数
|
1个M20XI.S电缆入口(电缆直径5...9mm),
|
|
|
电缆入口1插头
|
一个盲堵M20X1.5
|
|
|
弹簧接线端T
|
用于导线横截面2.5mm2
|
|
1)剧烈的物位突变后.给出正确物位丽要的时间。
8、超声波液位计选型指南
|
DLM551
|
||
|
防爆
|
P标准型(非防爆)
|
一本安型(Ex is IIB T6)
|
|
换能器材料l过程温度/防护等级
|
A PU/PC/一40...70℃/I P66
|
B PTFE/一40…701/IP67
|
|
过程连接
|
CP螺纹GI.认
|
|
|
电子组件
|
A 4二20mA两线制
|
B 4... 20mA/24V DCt10%四线制
|
|
C 4二20mA HART两线制
|
D 4…20Ma/24VDVt10%/HART四线制
|
|
|
外壳,防护等级
|
S 塑料/IP66
|
A 铝/IP66
|
|
电缆进线
|
M M20x1.5
|
N 2/1NPT
|
|
现场显示/编程
|
A 带
|
X 不带
|
注:本安型只可选“A”型外壳,及“A”或’'C'’电子组件。
|
DLM552
|
||
|
防爆
|
P标准型(非防爆)
|
I本安型(Ex is IIB T6)
|
|
换能器材料,过程温度l防护等级
|
A PU/PC/一40...70℃/IP66
|
B PTFE/-40二70t/IP67
|
|
过程连接
|
CP螺纹02A
|
|
|
电子组件
|
A 4二2UmA两线制
|
B 4... 20mA/24V DC 110%四线制
|
|
C 4... 20mA HAR‘一两线制
|
D 4... 20mA/24V DCt 10%/HART四线制
|
|
|
外壳/防护等级
|
S塑料/IP66
|
A铝/IP66
|
|
电缆进线
|
M M20x1.S
|
N 2/1NPT
|
|
现场显示/编程
|
A带
|
X不带
|
注:本安型只可选二“A”型外壳。及’'A',或‘'C',电子组件。
|
DLM553
|
||
|
防爆
|
P标准型〔非防爆)
|
I本安型(Ex is IIB T6)
|
|
换能器材料/过程温度/防护等级
|
A PU/PC/-40二70t/1P66
|
|
|
过程连接
|
FL法兰
|
OJ吊架
|
|
电子组件
|
A 4...20mA两线制
|
B 4... 20mA/24V DCs10%四线制
|
|
C 4... 20mA HART两线制
|
D4…20Ma/24V DC110%/HART
|
|
|
外壳/防护等级
|
S塑料/IP66
|
A铝/IP66
|
|
电缆进线
|
M M20x1.5
|
N 2/1N PT
|
|
现场显示/编程
|
A带
|
X不带
|
注:本安型只可选“A”型外壳及,“A”或“C”电子组件。
电磁流量计、 磁性液位计、 电磁流量计、 智能雷达液位计、 压力变送器、

